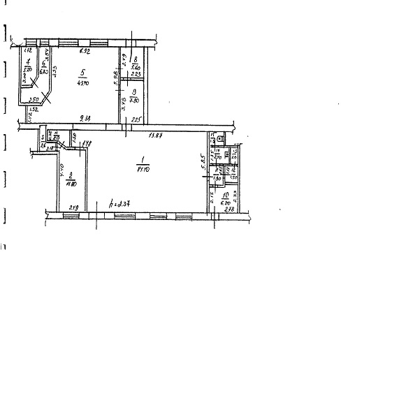
Нежитлове приміщення Піцерії, яке знаходиться на першому поверсі гуртожитка, загальною площею 175,9 кв.м., розташовані за адресою: м. Миколаїв, пр. Миру 22/2. Об’єкт має дуже велику ліквідність, якщо розглядати покупку в якості використання під продуктовий магазин та кулінарію. Поблизу не має в наявності інших продуктових магазинів, але попит на ці товари дуже великий. В районі знаходження майна великий спальний масив. План нерухомості знаходиться у фото.
Сплатіть гарантійний внесок по отриманій квитанції.
Як придбати майно?
Запропонувати найвищу ціну в день проведення аукціону;
Сплатити вартість лота протягом 10 днів після завершення торгів;
Отримати акт про реалізацію та забрати придбане майно.
Дякуємо
Ваше питання вiдправлено фахівцю.
Наш менеджер зв'яжеться з Вами
найближчим часом.
OK
Зверніть Вашу увагу.
У разі перемоги Ви повинні сплатити повну вартість придбаного лоту протягом 5 робочих днів.
При недотриманні строку по сплаті, відсутності необхідних документів для оформлення договору купівлі-продажу (паспорт, ІПН, дозвіл одного з подружжя), відмови від придбання лота, тощо – Гарантійний внесок не повертається!